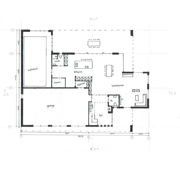
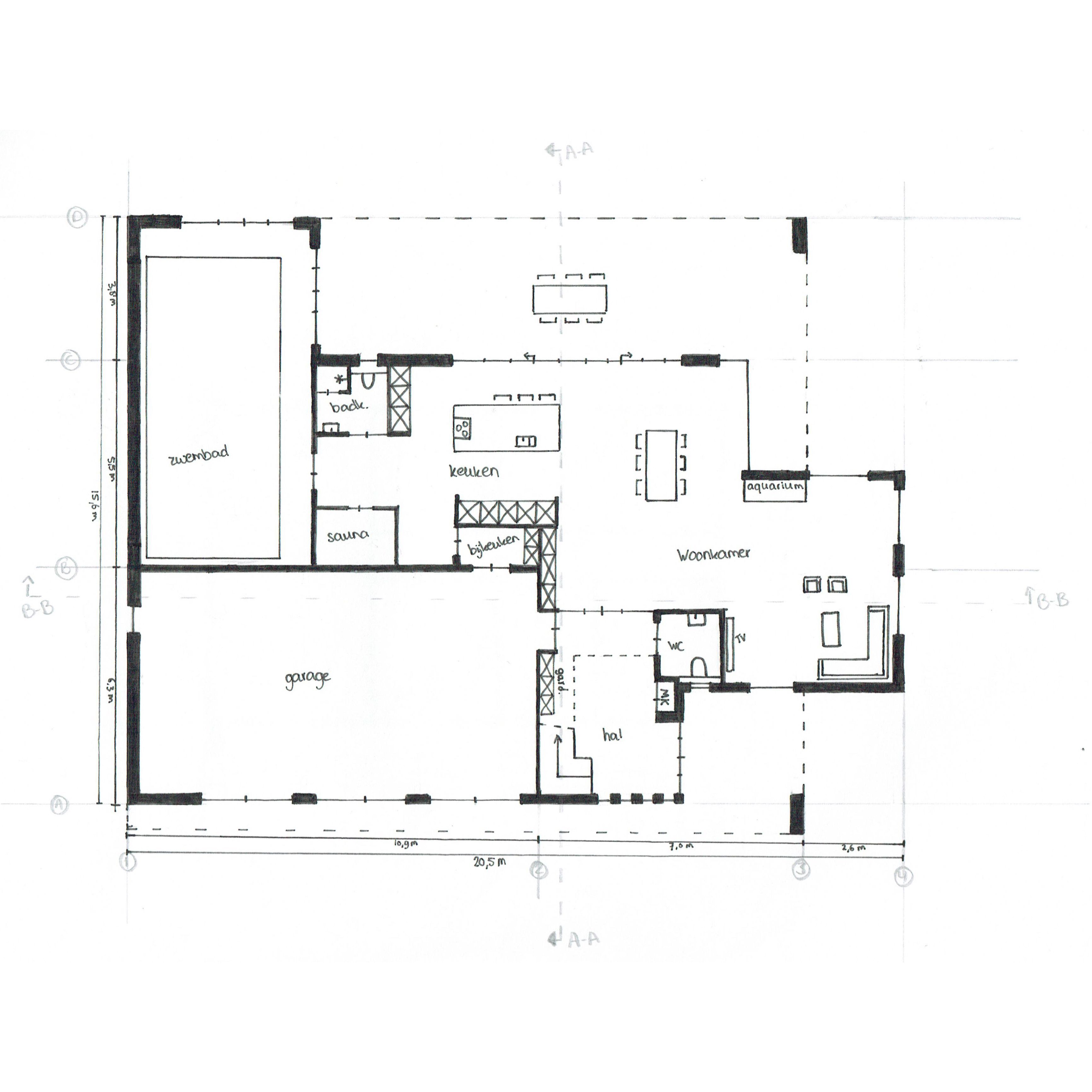
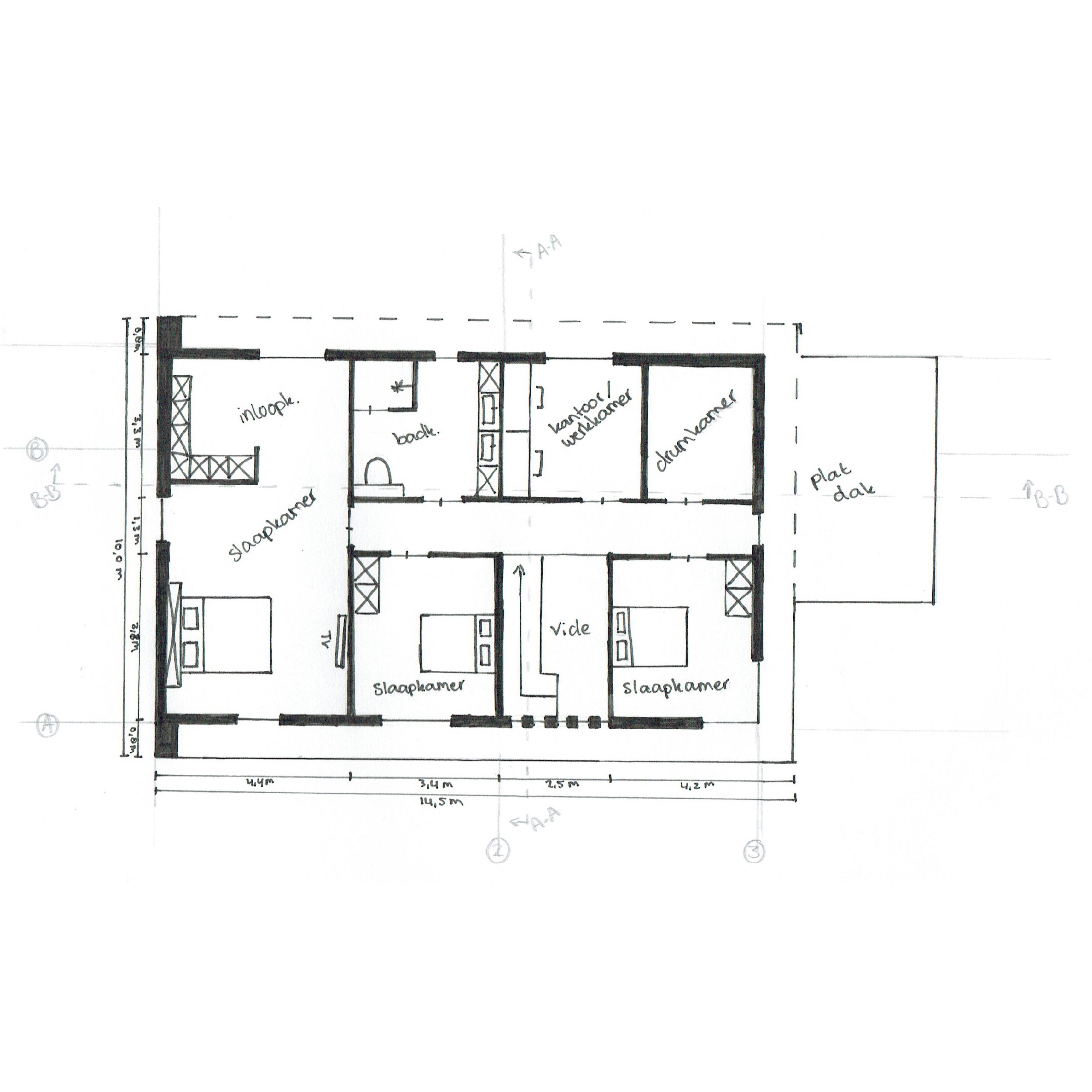
Schetsontwerp

Het getekende schetsontwerp is gebaseerd op een voorbeeldproject. Deze heb je zelf uitgekozen en je hebt er onderzoek naar gedaan. Na het onderzoek pas je het voorbeeldproject aan zodat het je eigen ontwerp wordt. Deze werk je dan verder uit tot een schetsontwerp. 

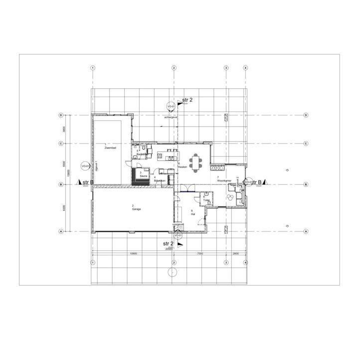
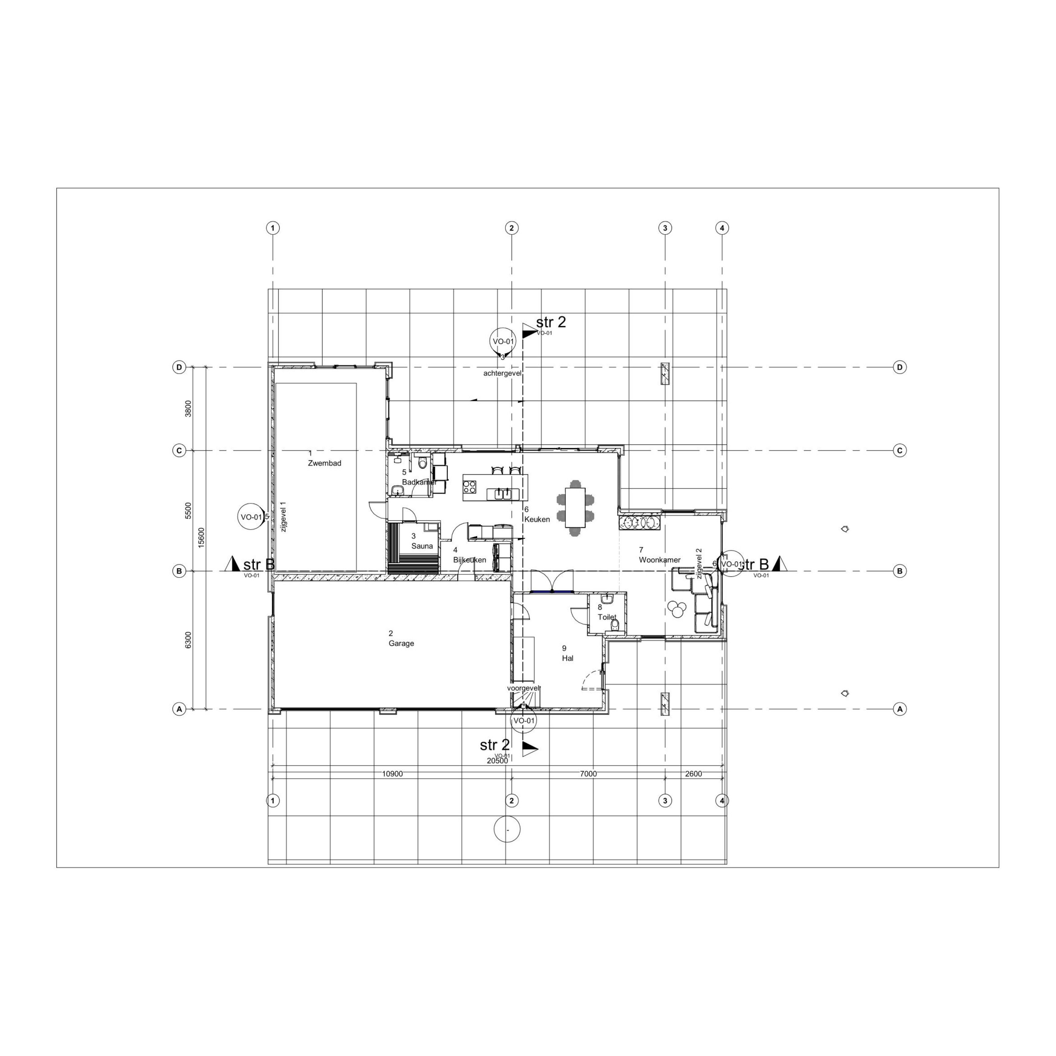
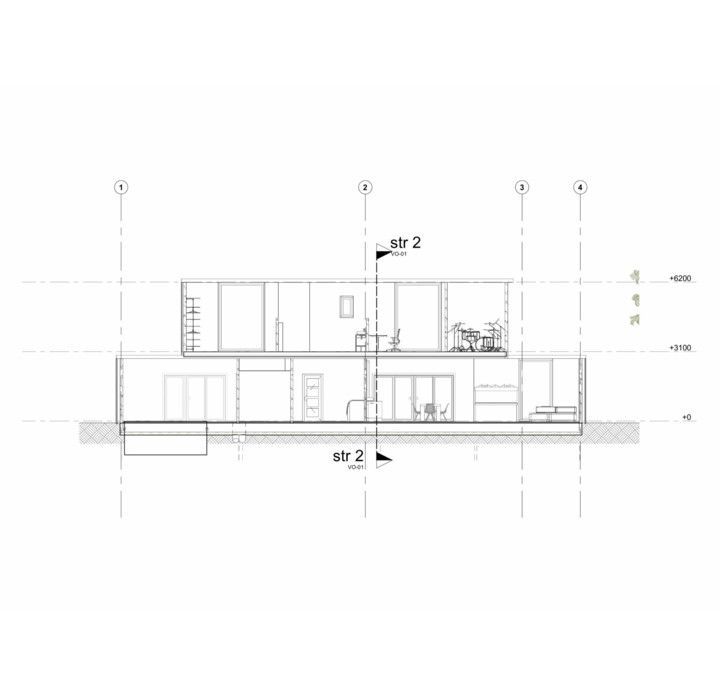
Voorlopig ontwerp

Als het schetsontwerp af is, werk je het uit in Revit. Tijdens het maken van je voorlopig ontwerp kun je nog aanpassingen doen. Als het model in Revit is uitgewerkt, heb je je voorlopig ontwerp.