Villa
In de derde periode ga je verder met het uitwerken van de villa. Je kijkt dieper in op het technische onderdeel en vergelijkt je villa met het bouwbesluit.
In de derde periode ga je verder met het uitwerken van de villa. Je kijkt dieper in op het technische onderdeel en vergelijkt je villa met het bouwbesluit.
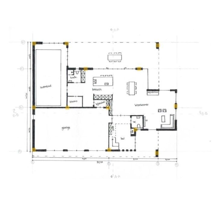
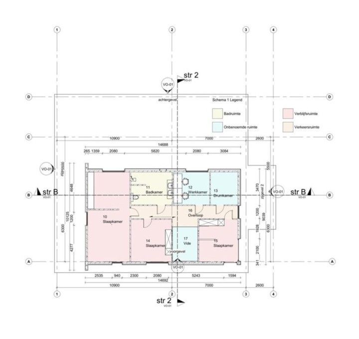
Je begint met een onderzoek naar het bouwbesluit. Het verloopig ontwerp vergelijk je met het bouwbesluit en dan kun je je villa aanpassen zodat het volledig voldoet aan het bouwbesluit.
Voor bouwfysica kijk je naar hoeveel daglicht er in de woning binnenkomt. Hiervoor maak je een daglichtberekening, maak je een daglichtanalyse en maak je in Revit een zonnestudie. Voor de zonnestudie kijk je naar verschillende tijdstippen. Daarnaast maak je ook nog een keuze in wat voor soort glas je gaat gebruiken in de ramen.
Bij geotechniek bereken je de horizontale en verticale belasting. Deze berekening maak je door middel van de hoogte en het volumegewicht.
Tot slot doe je een aanvraag naar een omgevingsvergunning. Hiervoor kijk je nog naar de verblijfsgebieden, gebruiksoppervlaktes en vloeroppervlaktes. Daarnaast doe je nog een schatting naar de bouwkosten van het gehele project.
Voor de tweede schouw werk je alles zo uit dat je uiteindelijk een werktekening hebt. Hiervoor maak je een technische omschrijving, kijk je naar verschillende aanbestedingsvormen, installaties, constructies en maak je een kozijnstaat.
Je begint met het maken van een technische omschrijving. Samen met een groepje maak je eigenlijk de basis voor het verder uitwerken van je ontwerp. In de technische omschrijving staat bijvoorbeeld wat voor materialen je gaat gebruiken.
Om je juiste aanbestedingsvorm te kiezen, kijk je naar verschillende soorten aanbestedingen. Je doet een klein onderzoek en kijkt welke het beste past bij het bouwen van jou villa.
Voor installaties maak je in Revit tekeningen van de riolering, geef je aan waar de elektrische installaties zitten en plaats je de WTW-unit.
Je constructieve keuze leg je uit voor constructies. Daarnaast bereken je een houten balklaag en bereken je hoeveel palen je nodig hebt voor je fundering.
Als laatste maak je een kozijnstaat. Hierin geef je aan wat voor soort kozijn er in je woning zit en welke materialen ervoor gebruikt wordt. Ook maak je 3 detailtekeningen van de aansluiting op de gevel.
Je definitief ontwerp is het ontwerp na alle aanpassingen en waar niks meer aan verandert wordt. Van het definitief ontwerp uiteindelijk een werktekening die op de bouwplaats zal hangen.
Student NHL Stenden Bouwkunde
lisanna.everts@student.nhlstenden.com