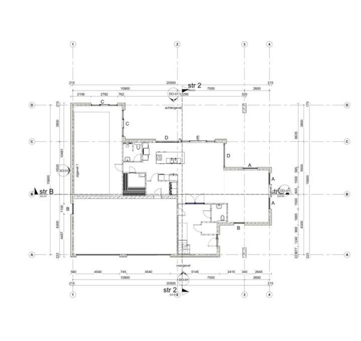
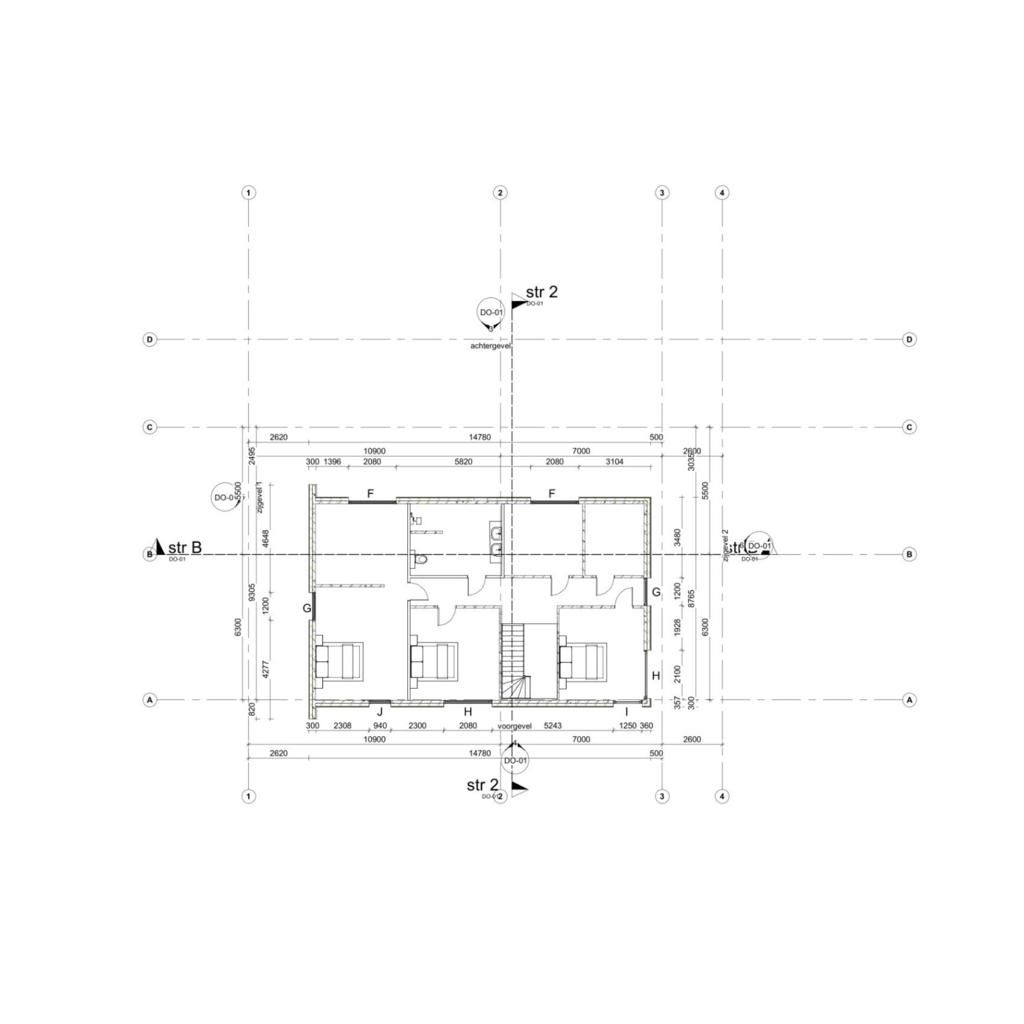
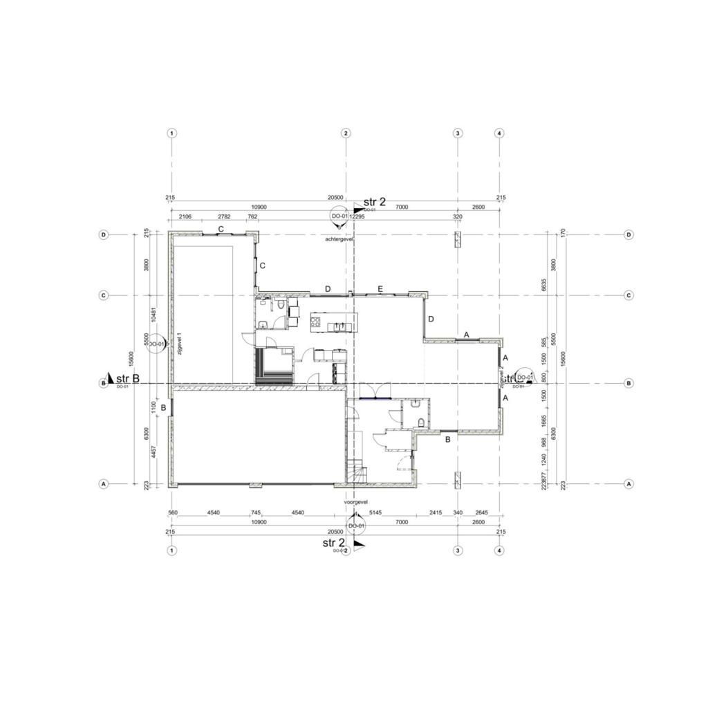
Definitief ontwerp
Het definitief ontwerp is het uiteindelijke ontwerp wat gebouwd kan gaan worden. Het ontwerp voldoet aan het bouwbesluit en aan de eisen van de opdrachtgever.
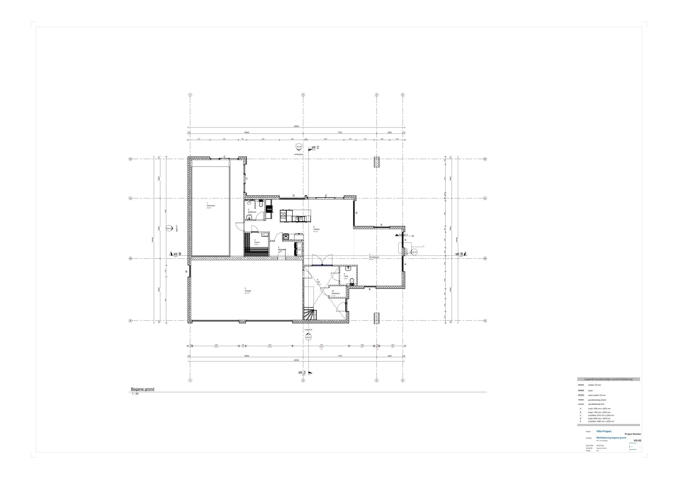
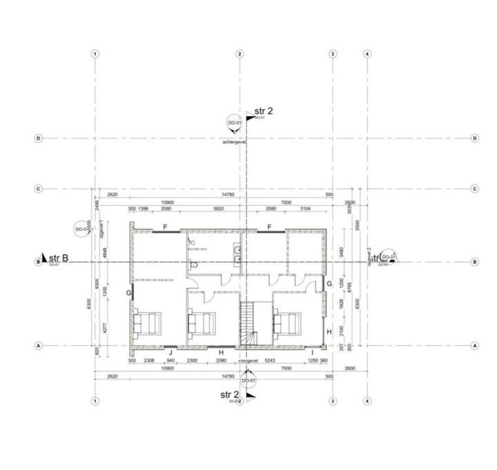
Werktekening

Het definitief ontwerp is het uiteindelijke ontwerp wat gebouwd kan gaan worden. Het ontwerp voldoet aan het bouwbesluit en aan de eisen van de opdrachtgever.
